Paramètres d'accessibilité

Retour aux résultats de recherche

Alternatives textuelles indisponible pour les images du carousel, nous vous conseillons de contacter Keredes pour une description détaillée du logement ou pour toutes autres questions.

1 photos

Rennes (35000)
Appartement 3 pièces
59.05m²

réf. FM5084

231 000 €

2 chambre(s)

DPE : B

GES : B

    Description

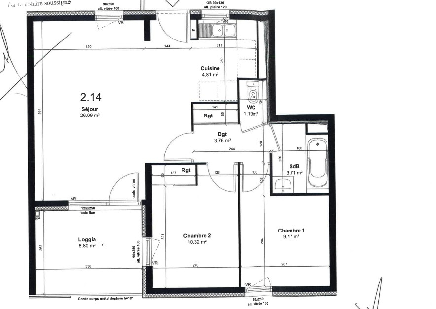
    A VENDRE à RENNES la Courrouze, NOUVEAU T3 DE 59,05 m² à 10 mns à pied du métro Mabilais dans une résidence de 2011. Cet appartement sous convention PLS jusque 2030 est un placement idéal pour un investisseur car déjà loué et exonéré de taxe foncière pour les 4 années à venir ! Situé au 2ème étage sur 5, il est composé d’un séjour ouvrant sur une terrasse plein Sud et sans aucun vis à vis, un espace cuisine, 2 chambres dont une avec placard, un dégagement avec placard, une salle de bains et un wc séparé. Un emplacement de parking en sous-sol complète l’ensemble. Chauffage collectif avec compteur individuel.
    Prix 231000 euros dont 5% de frais d’agence à la charge des acquéreurs.
    Pas de procédure en cours. (5.00 % honoraires TTC à la charge de l’acquéreur.)
    Copropriété de 123 lots.

    Caractéristiques

    • 3 pièces
    • 2 chambres
    • Surface habitable 59.05 m²
    • Chauffage chauffageUrbain

    Découvrez ce bien de plus près !

    Prenez rendez-vous pour une visite personnalisée afin de découvrir toutes les caractéristiques uniques de ce bien.

    Détail du prix

    Prix de vente :

    231 000 €

    Honoraires (à la charge de l'Acquéreur) :

    5 % TTC

    Prix hors honoraires :

    220 000 €

    Bilan énergétique

    Consommation d'énergie

    • < 50A
    • 51 à 90B
    • 91 à 150C
    • 151 à 230D
    • 231 à 330E
    • 331 à 450F
    • > 450G

    en kgeqCO2/m2/an

    Émission gaz à effet de serre

    • < 5A
    • 6 à 10B
    • 11 à 20C
    • 21 à 35D
    • 36 à 55E
    • 56 à 80F
    • > 80G

    en kWhep/m2/an

    Le quartier

    Pourquoi choisir Keredes

    • Parfaite connaissance des copropriétés

      Grâce à notre statut de syndic, nous connaissons en détail le fonctionnement des copropriétés ainsi que les travaux à venir, ce qui constitue un véritable atout pour rassurer les futurs acquéreurs et valoriser votre bien.

    • Maîtrise du dispositif BRS

      Pour les biens en revente dans le cadre du Bail Réel Solidaire (BRS), nous maîtrisons les spécificités juridiques et financières de ce dispositif, garantissant une transaction fluide et conforme.

    • Ancrage local

      Nos conseillers commerciaux connaissent parfaitement leur secteur car présents depuis des années chez Keredes, ils apportent expertise, stabilité et proximité.

    • Accompagnement personnalisé

      Vendre un bien ne se résume pas à une simple transaction : c’est un accompagnement de bout en bout, avec une attention particulière portée à la clarté, à l’honnêteté et à la transparence, en lien avec notre vision de service global.

    Vous souhaitez connaître la valeur réelle de votre bien immobilier ?

    Profitez d’une estimation gratuite par nos experts Keredes.

    Faire estimer mon bien gratuitement